阿里巴巴达摩院|阿里巴巴达摩院全球总部设计方案,灵感源自“一叶浮生”

文章图片

文章图片
【阿里巴巴达摩院|阿里巴巴达摩院全球总部设计方案,灵感源自“一叶浮生”】
文章图片

文章图片

文章图片

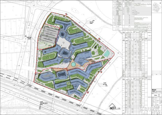
阿里巴巴达摩院南湖园区一期、二期项目位于未来科技城中泰街道 , 02省道以北、铜山溪以东 。 项目用地性质为一类工业用地 , 用地面积228076㎡ , 总建筑面积497055.87㎡ , 容积率1.29 , 建筑密度36.2% , 绿地率24.21% , 机动车泊位4055个 。
项目总投资约200亿元 , 建成作为阿里巴巴达摩院全球总部基地 , 承载阿里巴巴科技研发、战略性创新产业培育、未来城市的科技试验场、浙江科技研发人才集聚地 , 主要致力于大数据计算、AI算法、芯片算力、无人驾驶、量子计算等领域研发 , 是杭州“打造全国数字经济第一城”的重要创新平台 。
项目由Aedas建筑事务所、上海建筑设计研究院合作设计 。 方案以“一叶浮生”为灵感 , 将建筑与周围景观环境完美融合 , 与杭州民俗文化巧妙呼应 。
项目将建设成为“达摩院+生态圈”的混合型办公园区 , 集 “办公+实验研发”于一体 , 打造成为交互性、体验性、生态性的智慧办公研发园区 。
关于达摩院项目
2017年10月11日 , 在杭州云栖大会上 , 阿里巴巴CTO张建锋宣布 , 阿里巴巴将成立全球研究院 , 这就是后来的阿里达摩院 。
达摩院致力于探索科技未知 , 以人类愿景为驱动力 , 开展基础科学和创新性技术研究 。 在金庸小说中 , 达摩院代表着武学机构 。 “因为我们相信 , 未来一定是技术带来利润 , 未来市场规模的取得 , 是靠创新 。 ”马云表示 。
推荐阅读
- 水底奥秘|全球最大淡水鱼,体长可达2米,来到中国却出现“生存危机”
- 阿里巴巴|马云,江湖再见
- 阿里巴巴|华为和阿里巴巴谁的国际影响也更大,马云:你见过特朗普吗?
- 无话不谈|全球5G基站建设数量大曝光!中国建成50万个:那欧美国家呢?
- 阿里巴巴|AT一万亿港元市值之差,腾讯还是那个腾讯,阿里不再是那个阿里
- 芯片|麒麟9000芯片库存数量再曝光! 全球限量版:Mate40首发
- IT之家|vivo X50 Pro+ alexanderwang 限定版来了,全球仅1000台
- 机智玩机机|顶级机皇5天降千元照样无人问津!,全球第一手机厂商中国再垮塌
- 每日科技果粉|华为未上榜,全球手机出货量单品TOP10苹果占5款
- 阿里巴巴|马云神预言!又有一个\铁饭碗\行业消失,大量员工面临下岗风险
