设计师|晒晒35㎡单身公寓,装修的简单又精致,一个人住30年也行

文章图片

文章图片

文章图片

文章图片

文章图片

文章图片

文章图片

文章图片

文章图片

很多粉丝都喜欢看小户型的设计和装修风格 , 毕竟房价这么高 , 能买到一个单身公寓都算厉害了 。 所以今天给大家介绍一套糖系风格 , 35㎡的小空间 , 玩爆了很多100㎡的户型哦 , 谁看完都会由衷地夸一声真绝!
先上整体图给大家看一下 , 这是平平无奇的设计师吗 , 看一眼就爱上了好吗 。 我们正式分享走起~
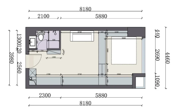
户型图比较方正 , 给了设计师很大的施展空间 , 因为仅有35㎡ , 所以不做隔断 , 只是通过柜子和家具把空间分割开 , 视野非常开阔 。一、抢眼的沙发背景墙
沙发区的设计是最大的亮点 。 整面墙用乳胶漆分色涂刷 。 因为居住者是男生 , 所以以灰蓝色为主 , 有一种清新的感觉 。 穿插着一些圆形和直角组合 , 有点甜系的风格 , 温馨可口 。
沙发区和工作区、卧室相连 , 浑然一体 , 整个隔断就是通过一个岛台隔开 。 当做工作台使用 , 也可以充当床头柜 。 上面摆设了很多软装 , 奠定了整体风格的基调 。 比如纯色系的画框 , 绿植以及雕塑等等 。
远距离看一下整体空间 。 主色系就是灰蓝色 , 包括窗帘以及床品都以蓝色调为主 。 搭配了木地板以及浅色沙发 , 整体非常和谐 。
浴室还做了干湿分离 , 洗手台底部是洗衣机和脏衣区 。 因为没有阳台的原因 , 小户型建议准备烘干机 。
二、整面墙的收纳柜
收纳的秘密是尽量一体化收纳 , 不分散 , 这样对于懒人来说 , 你就不用思考到底要收纳在卧室 , 还是要收纳在客厅 。 设计师设计了一整面7米大的柜子 , 满足了家里80%的收纳 。
首先是卧室区域 , 做了整面墙2.4米高的衣柜 , 衣服绝对能装下了 。
旁边的客厅做了电视柜的收纳 , 预留了空调送风口 。 和衣柜的连接处设计了开放式空间 , 可以用来放书或者装饰品 , 不会显得空间太沉闷 。
在旁边就是厨房空间 , 通过一个内嵌的电器柜作为分隔 , 整体色系都是白色调 , 连油烟机都选择了白色 , 所以很和谐 。
推荐阅读
- 设计师|瑜伽老师的极简之家,简约不简单,精神和物质的双重满足
- 金牛座|未来十天,桃花落入心间,真爱款款而来,脱离单身,爱情甜甜蜜蜜
- 沐枫情感|教你追成熟男神的方法,30岁单身男人怎么追
- 单身的人心里是不是心里都有一个自己欣赏喜欢的人
- 设计师|一进她的113㎡新家,就被玄关迷住,全屋色彩斑斓,高级感藏不住
- 欣相结合的日记|秋风瑟瑟,将会摆脱单身,寻到真爱的4大星座,近段时间内
- 一字肩|董璇单身后越发年轻,穿蓝色一字肩裙配水波纹短发,美爆了
- 星说家装|生活中有可爱一面,卧室还发现了卡通头饰,晒晒蒋劲夫真实中的家
- 设计师|庭院铺装设计常犯的八大错误,你躺枪了没?(附解决方案)
- 真正笑果|设计师估计已经被人打了!,25个沙雕反人类设计
